除大塊機的安裝要注意這些
發布時間:2020-12-18除大塊機的安裝要注意這些-行業動態-洛陽廣盈機械設備有限公司點擊:6461次

除大塊機的安裝要注意這些
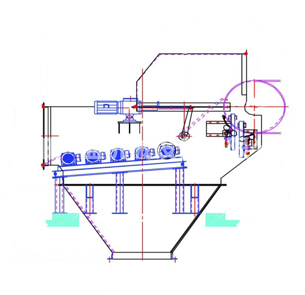
除大塊機是電機振動給料機中的主要型號,是一種性能優越的給料機,廣泛用于各個行業的輸送、包裝和貯存流程中。作為一種重要的機械設備,有些用戶對它的正確安裝要求還不是太了解。
除大塊機安裝要求要注意以下幾點:
1、安裝要水平,也可根據物料和輸送性質下傾10度—15度安裝,不能傾斜太多,否則會造成物料自流;
2、注意除大塊機振動電機和輸送槽的連接狀態,保證牢固;
3、給料機的懸掛裝置應采用柔性連接;
4、開機前檢查兩臺振動電機偏心塊與固定偏心塊夾心角是否一致;
5、空試前,需要把除大塊機全部螺栓緊固一次,尤其是振動電機的地腳螺栓,每當連續運轉3-5小時后就需要重新緊固一次;
6、試運行中,觀察兩臺振動電機轉身是否相反,若不是,需調換一臺的兩相接線;
7、試運行中,觀察除雜物機是否有擺動,有無異響等。
- 下一篇:旋轉清堵機輕松搞定堵塞問題

豫公網安備 41030502000613號